Residential Buildings New Lauby

Ostrava - Moravská Ostrava 2024

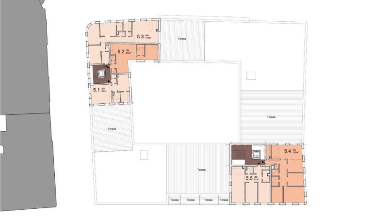
The Ostrava New Lauby, forming a residential block at the main city square next to the old Town Hall, draws its appearance primarily from its context. The surrounding blocks of houses, with varying heights, widths, colors, and textures due to their gradual development and ownership structure, are typical for historic cities. The new block is therefore divided into several masses, levels of floors, colors, and textures. The intention was a conscious balance exactly on the border between eight houses and a single building. This division gives the building a form and scale that harmoniously integrates into the city. The facades play with the bending of street lines, silhouettes, and the interplay of shadows from balconies and loggias. Rounded corners, on the other hand, unify these facades. The project is an initiative of the municipality in the field of residential construction, connected with the completion of the historically valuable city core and the construction of underground parking capacities for the public. The residential layouts in the above-ground floors are concentrated around five vertical communications, operationally independent houses. A common small inner courtyard maximizes daylight through glazed galleries. Harmony with the place as a key quality.

Category
Completed, Residential, Urban design
Timeline
2016-2024
Area
6120 m2
Locality
Ostrava - Moravská Ostrava
Client
Sdružení BBB Nové Lauby a Magistrát města Ostrava
Type
Bytový dům, obchodní plochy
Status
realizováno