zahradní cesta Ztracenka

Praha - Albertov 2025

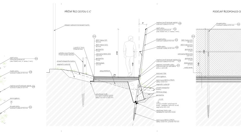
Propojení Albertovských schodů s parkem Ztracenka. Subtilní ocelová intervence osazená do kamnného opěrného valu je potažena kovovou sítí a porostlá psím vínem. Cesta jako analogie na plot sousedních kurtů se vine zahradou a je lemována podrostem z půdopokryvných rostlin. Do jejích záhybů jsou vysazeny nové stromy.

Category
Timeline
2023-2024
Area
0 m2
Locality
Praha - Albertov
Client
Městská část Praha 2
Type
Status
realizováno